Opis nieruchomości
JESTEŚMY BIUREM SPRZEDAŻY DEWELOPERA.
Osada Kamieniec, to kameralne osiedle, usytuowane w Ustroniu, w cichym i spokojnym miejscu pod lasem, gwarantującym wypoczynek. Centrum Ustronia gdzie mamy wszystkie udogodnienia oddalone jest zaledwie o około 2 km.
Inwestycja składać się będzie z czterech budynków dwukondygnacyjnych plus poddasze użytkowe.
Chcielibyśmy zaproponować Państwu budynek B składający się z 11 apartamentów, 5 na parterze i 6 na 1 piętrze.
Apartamenty na parterze będą miały do wyłącznego korzystania ogródki o pow. od 22 do 30 m2.
Apartamenty na piętrze posiadać będą balkony o pow. od 9 do 14 m2, a cztery z nich 2-poziomowe także dostęp do słonecznego tarasu na dachu budynku. Do dyspozycji mieszkańców będzie także rowerownia, narciarnia i sauna.
Każdy apartament ma zapewnione miejsce parkingowe w cenie 18.000 zł – do wyłącznego korzystania.
Na terenie kompleksu znajdować się będzie kilka dodatkowych miejsc parkingowych dla gości.
Ta nieruchomość doskonale nadawać się będzie do zamieszkania na stałe jak i na weekendowe wyjazdy.
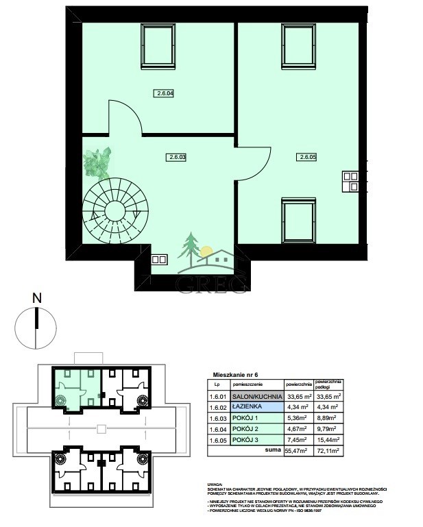
Prezentowany dwupoziomowy apartament M6 usytuowany będzie na 1 piętrze budynku B, który jest w trakcie realizacji. W tym budynku jest wolnych 9 mieszkań, do dyspozycji klientów.
M1- parter, powierzchnia 37,98 m2, cena: 505 134 zł
M2- parter, powierzchnia 41,92 m2, cena: 557 536 zł
M3- parter, powierzchnia 40,03 m2, cena: 532 399 zł
M4- parter, powierzchnia 40,03 m2, cena: 548 411 zł
M7- piętro I - dwupoziomowe, powierzchnia 55,28 m2, cena: 713 112 zł
M8- piętro I, powierzchnia 41,82 m2, cena: 556 206 zł
M10- piętro I - dwupoziomowe, powierzchnia 57,79 m2, cena: 745 491 zł
Budynek A jest oddany do użytkowania, w pełni skończony i zagospodarowany.
Gorąco polecamy.
Podczas spotkania w naszym biurze uzyskają Państwo więcej informacji o tej inwestycji, jesteśmy do Państwa dyspozycji także w weekendy.
Ceny zawierają 8% VAT, kupujący nie płaci prowizji, zwolniony jest także z 2% PCC.
Jeżeli ta oferta nie spełnia Państwa oczekiwań, proszę zadzwonić lub napisać do nas zaoszczędzicie Państwo swój cenny czas. Znajdziemy ofertę spełniającą Państwa oczekiwania, jesteśmy do Państwa dyspozycji. Dzięki współpracy z większością biur nieruchomości, posiadamy obszerną bazę ofert.
Korzystając z naszej usługi pośrednictwa otrzymacie Państwo fachową pomoc gwarantującą bezpieczeństwo transakcji. Przeprowadzimy Państwa bezstresowo przez cały proces kupna nieruchomości i zawarcia umów z dostawcami mediów.
Bezpłatnie pomożemy Państwu w załatwieniu wszelkich formalności związanych z uzyskaniem kredytu hipotecznego na zakup nieruchomości i pożyczki na jej ewentualny remont. Współpracujemy z wieloma bankami co daje Państwu możliwość uzyskania najlepszej oferty kredytowej.
Nasi partnerzy pomogą Państwu także w ubezpieczeniu nieruchomości.
Nota prawna
Opis oferty zawarty na stronie internetowej sporządzany jest na podstawie oględzin nieruchomości oraz informacji uzyskanych od właściciela, może podlegać aktualizacji i nie stanowi oferty określonej w art. 66 i następnych K.C.Szczegóły



